Skip to main content

Zu vermieten

In der Altstadt von Zofingen, vermieten wir an der Bärengasse 9 eine gemütliche, ruhige und sonnige

3 Zimmer-Wohnung

Mit Grabengarten und direktem Zugang zur Tiefgarage 

 

In der Liegenschaft gibt es 4 Wohnungen und ein Ladenlokal. Die Liegenschaft hat einen Garten (Grabengarten), in dem Sie die lauschigen Sommerabende verbringen können. Die Tiefgarage und den Veloraum können Sie über den den Treppenabgang direkt beim hinteren Hauseingang reichen.

Es gibt keinen Lift.

Die Wohnung hat ca. 70m2 Wohnfläche. Der Innenausbau hat ein warmes rustikles Ambiente. Die Wände mit Klosterputz, Bodenbeläge aus Keramik, gebrannter Ton und Vinyl. Die Decken mit den alten Sichtbalken

Raumangebot

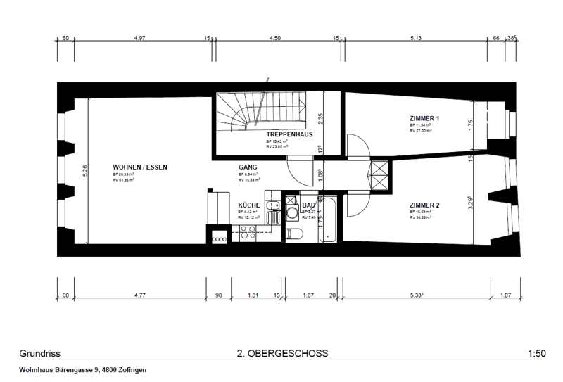
2. Obergeschoss

Wohn- / Esszimmer 
Offene Küche mit Geschirrspühler
Gang mit Einbauschrank
Zwei Zimmer 
Badezimmer mit Badewanne,

Keller Abstellraum
Zur Mitbenützung Veloraum, Gartenanlage
Tiefgarage Direkter Zugang über die Treppe beim Hintereingang

Termin & Kosten

Termin Per 1. April 2026, ev schon ab 1. Feb od 1. März
Mietzins Netto Fr. 1'280.00 im Monat
Nebenkosten Fr. 170.00 im Monat
Mietzinskaution Fr. 2'800.00 (Konto bei einer Bank)
Tiefgarage Fr. 140.00 im Monat / inkl. NK (optional)